These strips of elongated windows allowed for impressive views of the. Completed in 1929 Le Corbusiers.
Reworked Villa Savoye First Floor Plan Floor Plans Villa Savoye Plan How To Plan
This meant that Corbusier needed to use materials with structural integrity.

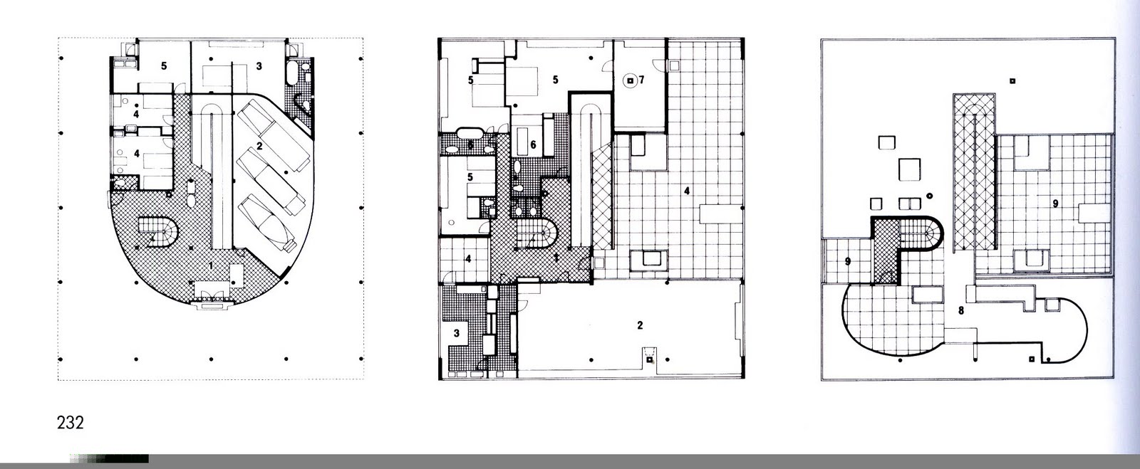
Villa savoye floor plan. In the top floor of Villa Savoye consists of two ways to get it to the first floor first by the main ramp that connects all part of the villa and second by the spiral stair the curve wall gives the villa other touches from straight walls to curve. As for the ground floor Villa Savoye was structured from a modulation of pillars that are part of an independent structural system and proposes. Corbusier used reinforced concrete and plastered masonry to create villa Savoye.
View Interior Photos Take A Virtual Home Tour. Second floor plan. Ribbon windows Reinforced concrete provides a revolution in the history of the window.
Savwa is a modernist villa in Poissy on the outskirts of Paris France. Villa Savoye French pronunciation. Description for this Autocad block.
Situated in Poissy a small commune outside of Paris Villa Savoye is one of the most significant contributions to modern architecture in the 20th century. Villa Savoye – Le Corbusier – ground floor plan in top or plan view. They distanced at 475 meters from each other which forms a square grid of 235 meters each side.
Made of reinforced concrete the ground floor walls are recessed and painted green so that the house looks like a box floating on delicate pilotis. NORTH-WEST ELEVATION Villa Savoye by Le Corbusier 1120 Maggie Hummel 2710. Autocad drawing of Villa Savoye ground floor Villa Savoye is a modernist villa in Poissy a house near of Paris France.
Ad Search By Architectural Style Square Footage Home Features Countless Other Criteria. OPEN FLOOR PLAN The floor space was free to configure into rooms without concern for supporting walls. The Villa Savoye incorporated these principles and also realized many of the concepts expressed in Vers une Architecture.
The second floor of the Villa Savoye includes long strips of ribbon windows that allow views of the large surrounding yard and is inspired from steam ships. In 1929 Le Corbusier described the Villa Savoye as a box suspended in the air in the fields over an orchard The house designed for the Savoye family was erected 20 miles 30 kilometres by road from their Paris home. FIRST FLOOR PLAN 3.
The DWG files are compatible back to AutoCAD 2000. Villa Savoye by Le Corbusier 1120 SECOND FLOOR PLAN Maggie Hummel 2710. It was designed by the Swiss architects Le Corbusier and his cousin Pierre Jeanneret and built between 1928 and 1931 using reinforced concrete.
These AutoCAD drawings are available to purchase and Download NOW. This iconic house was built between 1928 and 1931 by Le Corbusier and Pierre Jeanneret. The use of the car as a link between the two homes was fundamental to the design of the villa.
Throughout the 1920s via his writings and designs Le Corbusier formerly Charles-Edouard Jeanneret considered the nature of modern life and architectures. HORIZONTAL WINDOWSThe second floor of the Villa Savoye includes long strips of ribbon windows that allow unencumbered views of. The Villa Savoye floor plan for the ground was designed according to the movement of a car entering the building.
LE CORBUSIER VILLA SAVOYE PART 2 ARCHITECTURE continuing from part 1. Le Corbusier Villa Savoye by Le Corbusier was constructed in 1929 1931. It is a modernist villa on the outskirts of Paris originally commissioned by the Savoye family as a country retreat.
The architecture of Villa Savoye In plan the house is based on a precise square grid marked by 25 columns while in elevation the grid becomes rectangularIn late 1928 the horizontal grid and by consequence the whole building size was scaled down from 5 to 475 meters on a request by the client worried not. HORIZONTAL WINDOWS The second floor of the Villa Savoye includes long strips of ribbon windows that allow unencumbered views of the large surrounding yard and constitute the fourth point of his system. 1960s the Villa Savoye came to stand as a monument to the first phase of Modernism which by the time of the build-ings preservation was perceived as a historical phenome-non.
It was designed by Swiss architects Le. 1 The use of reinforced concrete was a very modern method of construction in the 1920s and 30s. The Villa Savoye at Poissy designed by Le Corbusier in 1929 represents the culmination of a decade during which the architect worked to articulate the essence of modern architecture.
Villa Savoye floor plan. Supporting the structure by pil. Villa Savoye was the vision of Corbusiers 5 points to a new architecture and included his idea and concept of open plan and free space.
The villa shows his famous five points of modern architecture which are. It is the best example of Le Corbusiers Five Points for a new architecture which would later become cornerstones of Modernist Architecture. Villa Savoye was the vision of Corbusiers 5 points to a new architecture and included his idea and concept of open plan and free space.
Description Date A000 Cover Sheet A001 Site Plan A100 Ground Floor A101 First Floor A102 Solarium A201 Elevations A202 Elevations A301 Building Sections A302 Building. Visitors arrive by car in. Debates about the fate of the Villa Savoye engaged this historical perception of Modernism and the eventual preservation of the house concretized a view specific to the.
Lets Find Your Dream Home Today. The structure is based on an orthogonal grid of concrete pillars. This is a strength to enjoy panoramic.
Villa Savoye 82 Rue de Villiers 78300 Poissy France 12 1-0 4232013 30435 PM A000 Cover Sheet Project Number Villa Savoye Joseph Bloom 4252013 Author Checker No.
Villa Savoye Le Corbusier In 2021 Le Corbusier Villa Autocad Drawing
Le Corbusier Villa Savoye Architecte Dessin Architecte Fond Ecran Portable
Villa Savoye By Brian Vieira At Coroflot Com Floor Plans How To Plan Villa
Villa Savoye Le Corbusier S Machine Of Inhabit The Strength Of Architecture From 1998 Le Corbusier Corbusier Villa
Reworked Villa Savoye Ground Floor Plan Villa Savoye Plan Floor Plans Modern Floor Plans
Villa Savoye Villa Savoye Plan Villa Plan Le Corbusier
Villa Savoye By Brian Vieira At Coroflot Com Villa How To Plan
A Set Of Construction Documents For The Villa Savoye They Were Done Solely In Revit Using A Fe Villa Savoye Plan Construction Documents Corbusier Architecture
Le Corbusier Plan Drawings Google Sogning Villa Savoye Plan Le Corbusier Landscape Architecture Drawing
3rd Floor Plan Floor Plans How To Plan Flooring
Villa Savoye Ground Floor Plan Le Corbusier Villa Savoye Le Corbusier Villa Savoye Plan
Evan Shen Villa Savoye Plan Villa Plan Villa
Villa Savoye First Floor Plan Villa Savoye Plan Floor Plans Architecture House
Villa Savoye Plan Maison Architecte Architecture Bauhaus
Neues Bauen Modernist Migration Jhennifer A Amundson Ph D Villa Savoye Plan Le Corbusier Bartlett School Of Architecture
Remembering Le Corbusier S Villa Savoye Villa Savoye Plan Le Corbusier Villa Savoye Sketch
Image Result For Dimensions Villa Savoye Villa How To Plan Floor Plans
Villa Savoye Ground Floor Plan Villa Savoye Plan Floor Plans Ground Floor Plan
